
產品描述:
+sonic K系列回流焊爐,以高端的定位,穩定的品質,及出色的焊接能力。得到了使用者廣泛的好評。sonic產品所有電氣元器件
全部采用歐洲著名品牌。
+并且加熱與熱風系統均采用三相電源供電。可靠、穩定、并極大的減少了因兩相電源不平衡問題對電網造成的沖擊。
+sonic 產品亦極力的宣導環保理念,在低電能耗、低氮氣耗量、助焊劑有效的回收及過濾等方面充分的體現了環保理念。
+獨特的風道設計;完美對應大批量01005小元件的焊接工藝。同樣以高效的熱傳導與熱補償能力保證了大型BGA的焊接品質。
+新型鏈條運輸系統;有效避免了因軌道與鏈條間的滑動摩擦而引起的磨損、變形、塵屑、抖動等問題。
產品特點:

K 系列回流焊爐為您提供以下配置產品:
單軌/雙軌同速/雙軌異速
軌道寬度自動調節氮氣自動控制系統
溫區全程取樣系統
ARM實時爐溫監控系統
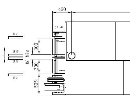
? ? ?標配:二、三軌道移動
? ? ?雙軌生產時:
? ? (2×300mm) ×2set
? ? ?單軌生產時:
? ??(50-550mm)×1set
與PANASONIC ?NPM 貼片機可直接對接,無需加裝接駁臺或移載機
選配:2通道氧氣分析儀
選配:取樣流量檢測報警系統
選配:自動閉環控制系統
ARM 智能工藝曲線管理系統,實現24/7的實時溫度曲線檢測,保證生產品質